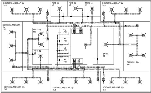
Gebäude im Detail
Bürogebäude: Neubau, 5.500 m2, 4 Stockwerke, Stockholm.
Heizung: Fernwärme, Heizkörper.
Kühlung: Kaltwasserkühlung.
AHU: 2Â Stk.
Fenster: U=0,7, G=0,3, interner Sonnenschutz.
Bürozeiten: 06:00–19:00 Uhr, Mo–Fr (Betriebszeit der Einheit).
Belegung
- Büro: 90 % – Personenzahl 50 %.
- Konferenzraum: 50 % – Personenzahl 75 %.
Luftströmungen
- Luftbasiert: 10–25 l/s pro Person.
- Wasserbasiert: 10Â l/s pro Person.
Sollwerte
- Zuluft: Außenluftkompensierte Zuluftregelung.
- Raum: Kühlung 24 C°/Heizung 22 C°.
Regelungslösungen im Detail
Konstanter Durchfluss
- Konstanter Durchfluss in allen Räumen (außer Konferenzräume mit Luftkühlung*).
- Raumtemperaturregler werden zur Überwachung an den DUC angeschlossen.
Variabler Volumenstrom
- Variabler Durchfluss in Büros, Konferenzräumen und Speisesälen.
- Der Luftvolumenstrom wird zwischen minimalem und maximalem Durchfluss geregelt.
- Der Raumregler regelt Heizung, Kühlung und Luftqualität und ist zur Überwachung an den DUC angeschlossen.
Bedarfsgeregelt
- .Bedarfsgesteuerter Luftvolumenstrom in Büros, Konferenz- und Speisesälen.
- Der Luftvolumenstrom wird zwischen Minimal-, Belegungs- und Maximalfluss geregelt.
- Drahtlose Kommunikation (WISE) überwacht und reguliert Heizung, Kühlung und Luftqualität.
* Um die Anforderungen von Boverket, der schwedischen Behörde für Wohnungswesen, Bauwesen und Raumplanung, für Neubauten (primärer Energiewert 70 kWh/m² Jahr) zu erfüllen, benötigen Konferenzräume einen variablen Durchfluss.

Datenbanken und Quellen
Energiekosten
- Durchschnittliche Kosten im Jahr 2023.
- Elektrizität: EUROSTAT.
- Fernwärme: Durchschnittswert von fünf schwedischen Lieferanten.
CO2-Emissionen
- Elektrizität: Carbon Footprint LTD (www.carbonfootprint.com).
- Fernwärme: Värmemarknadskommittén [The Heating Market Committee] (VMK)​.​
Andere Quellen

Möchten Sie mehr erfahren?
Swegon nimmt seine Verantwortung für die Reduzierung der Treibhausgasemissionen ernst. Unsere energieeffizienten Lösungen für Heizung, Kühlung und Belüftung tragen dazu bei, Kohlendioxidemissionen aus dem Gebäudebetrieb zu reduzieren und so zu einer nachhaltigeren Zukunft beizutragen.